
We are excited to announce that we have launched a building project to build a larger church here on the property. To donate, click the red donate button above, or see our Donations page for more information. To download a PowerPoint presentation of the project and fundraising campaign, click here.
St. Michael’s has grown exponentially over the years, with many young families enthusiastic about the Faith and about the Traditional Latin Mass, alongside longstanding faithful who have based their lives and staked their sanctification and salvation on nothing less for many decades. More and more Catholics around the country and the world are embracing Tradition like never before, and the Society of Saint Pius X is seeing incredible growth everywhere. The restrictions being put on the Traditional Mass in many places are also generating vigorous interest in Tradition and contributing to its rapid growth.
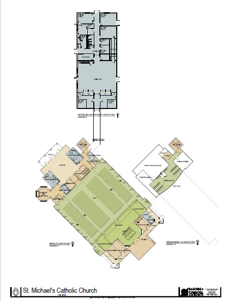
The new church here on the property will be able to accommodate all of the growth we have experienced and will continue to have. At the same time, our existing church building will be modified to triple the size of the parish hall, expand the kitchen to facilitate our events, and add six meeting rooms that can accommodate catechism (First Communion, Confirmation, and other levels), choir practice, and help with the needs of Stella Maris Academy.
The design of the new church is neoclassical, drawing inspiration from the Roman basilicas, with baroque elements. It will match the beautiful design of our existing historic altars (from 1925), which will be reinstalled in the new church. This classic style of Catholic Church architecture is designed for the greater glory of God and the maximum honor due to Our Lord Jesus Christ in the Blessed Sacrament. The new church will be sign of contradiction against the modern world, a monument to the Catholic Faith and her immutable Tradition, and a sacred place for the Holy Sacrifice of the Mass according to the ancient and venerable Roman Rite, the Traditional Latin Mass, the Mass of the Ages, for generations to come.
Conceptual renderings and floor plans are ready from the architects, and we have kicked off the project and are very close to raising the remaining funds to break ground and bring it to fruition. We need everyone to help make it a reality, and this involves courageous and generous sacrifice. We know we can count on God’s abundant blessings for all of the benefactors. Deus Vult!
We will keep everyone updated as the capital campaign and building project progress forward. Pledge cards are available here and in the church vestibule. You can mail in a pledge or place it in the Building Pledges box at church. We encourage everyone to pray about it and make a donation or a pledge. Donations may be made at church or online by clicking the red donate button above. For additional ways to give, see our Donations page. Conceptual renderings of the project are in the gallery below. Thank you for your generosity in helping this beautiful project advance forward toward completion!





